Home

Kontakt

Technik

Skelettbau

Immo

Lifestyle

 

OVI Magic 001 2025 ist fertig.

Mit dieser "Magic" Baureihe haben wir dem Tiny eine Außenhaut wie ein Flugzeug geschaffen.

Im Sommer schön kühl und im Winter schön mollig warm. 

Magic wild und flexiebel

 

 

 

 

 

 

 

 

 

 

 

Das Magic kann gefertigt werden:

*****Als einzelnes Tiny, im Doppel.*****

****In der Gruppe, ab 36 qm einzeln.***

*****Im Doppel mit 72 qm.*****

*****Als Wagenburg unbegrenzt.*****

 

 

 

 

 

Das neue Zeitalter des Bauens im Minimalismus ist angebrochen.

 

 

 

 

OVI Tiny HomHom OVI V Haus                                                 OVI Airlight

 

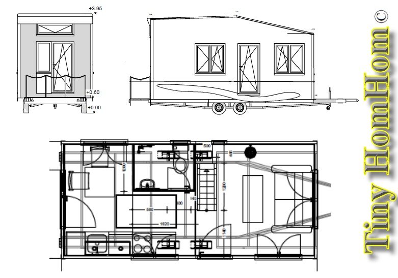
1 Tiny HomHom XL hell

   

     

 

 

Tiny HomHom XL in der Größe von 3,00 m Breite x 6,51 m Länge x 4,00 m Höhe

   
 

 

   
 

 

   
 

 

   
 

  1Tiny HomHom XL beim Transport

2  Tiny HomHom XL dunkel

Küche am Tag

Küche am Abend

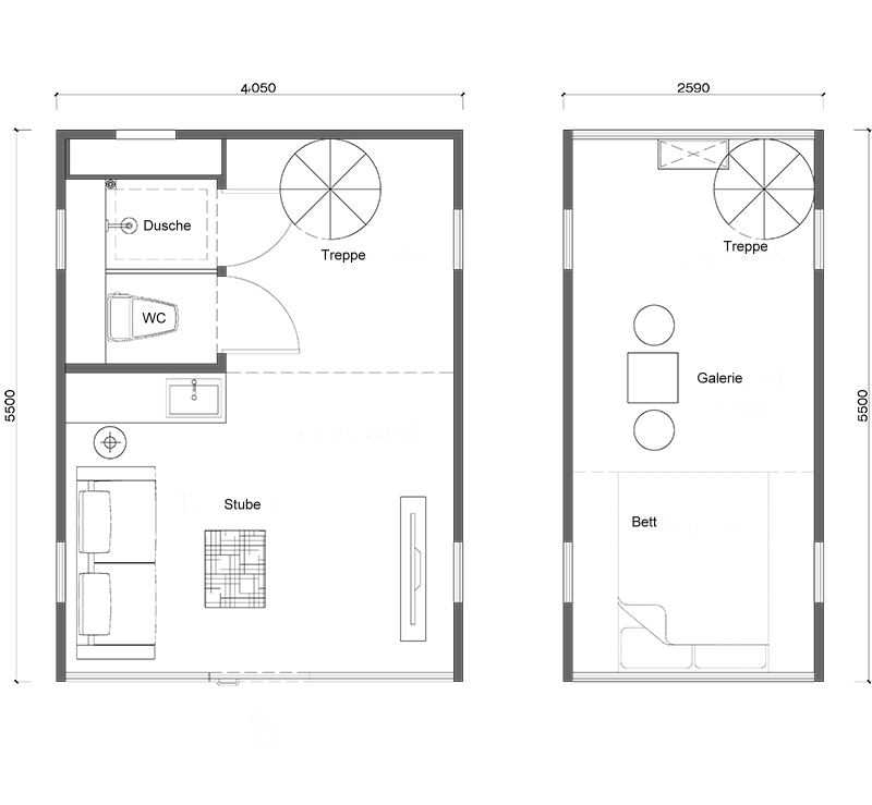
OG Schlafen

Aufgang Lösung 1

toskana Tiny

Tiny 17

Bad

wohnen

 

Unsere neue Serie “Tiny HomHom XL” haben wir auf Grund der hohen Anfragen extra für Sie aufgelegt.

Jedes Tiny HomHom wird in der Größe von 3,00 m Breite x 6,51 m Länge x 4,00 m Höhe inkl. Hänger gefertigt.

Das XL steht für 3 m Breite.

Gefertigt, werden unsere Tinys im Grundaufbau genauso wie unsere HomHom Baureihe.

Das besondere an der XL Serie ist:

Sie müssen für den Transport nach Jahren nicht mit dem ganzen Tiny zum TÜV sondern nur mit dem Anhänger.

Der Tandemanhänger wird extra für diesen Zweck neue gefertigt und erhält eine Straßenzulassung.

Die XL Serie schafft eine Innenbreite von ca. 2,75 m und eine Innenlänge von 6,25 m je nach Wandaufbau.

   

Alle Daten und Maße sind von OVI urheberrechtlich geschützt

Kontakt unter: www.ovi-haus.de

    05693 9914669

 

 

Copyright (c) 2023 OVI-Ohl. Alle Rechte vorbehalten.

ovi-06@homhom.eu